Oceníme vašu nehnuteľnosť

PROJEKT PRELLENKIRCHEN

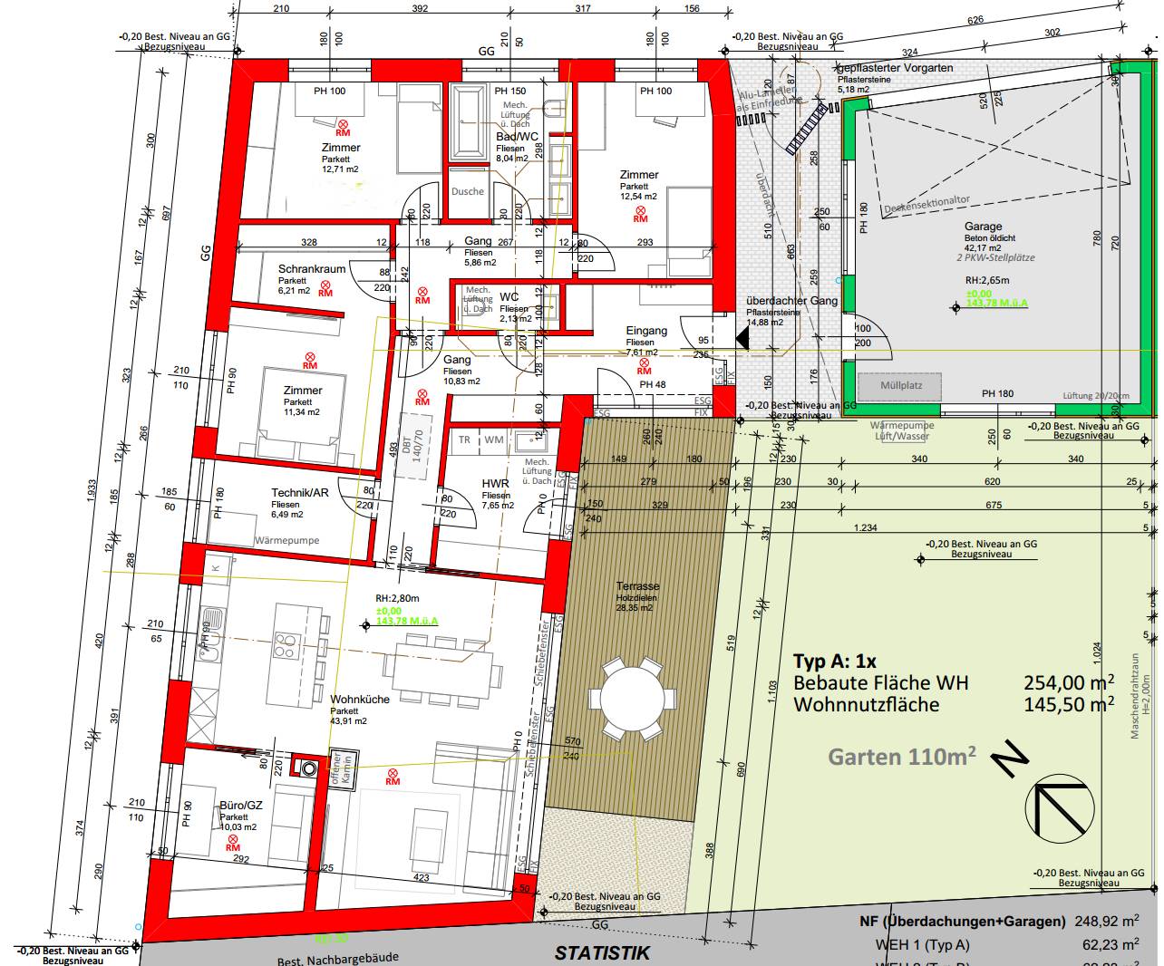
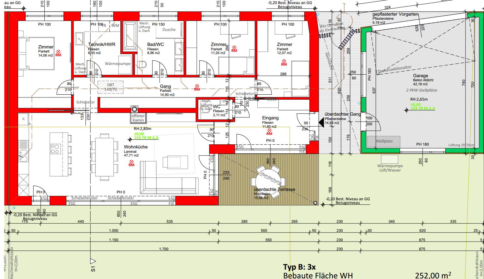
Výstavba domov 131 - 145 m² Od 2026 Prellenkirchen

Zoznam voľných objektov

Popis projektu

Projekt Prellenkirchen zahŕňa výstavbu 4 (1x dom Typ A a 3x dom Typ B) moderných nízkoenergetických rodinných domov v štýle bungalovu so sedlovou strechou. Súčasťou domu je záhrada a parkovacie státie. Domy budú vyhotovené v prevedení "holodom", za príplatok je možné ich dokončenie do štádia "na kľúč". V prípade záujmu existuje možnosť dokúpenia dvojgaráže o výmere 42,18 m2. Kúrenie je...

Čítať ďalej

Popis lokality

Prellenkirchen je obec v okrese Bruck an der Leitha, leží uprostred krásnej prírody a vyznačuje sa dobrou dostupnosťou do Bratislavy, pár minút autom. Je tu základná občianska vybavenosť: škôlka, škola, banka, lekár, obchod. Prellenkirchen ponúka viaceré možnosti pre aktívne strávenie voľného času: kúpalisko, cyklistické chodníky, turistické chodníky, futbalové ihrisko, tenisové kurty. Obec je...

Čítať ďalej

Štandard

Vybavenie domov v prevedení "holodom" : - podlahový poter - náter bielou interiérovou disperznou farbou - prípojky pre sanitu (vaňa, sprchovací kút, WC) - vchodové hliníkové dvere - podlahové kúrenie / chladenie a ohrev teplej vody tepelným čerpadlom - zateplená fasáda Vybavenie domov v prevedení "na kľúč": prevedenie "holodom" + - dlažba, laminátové podlahy prípadne parkety - náter...

Čítať ďalej

Podrobné informácie

prízemie
1
aktívne
Zobraziť na mape

FINAT IMMOBILIEN

Hauptplatz 7, Kittsee 2421

www.finat.at

Neváhajte nás kontaktovať

Chcem si rezervovať obhliadku
Poslať správu Zavolať

Poslať ponuku na e-mail

Dohodnúť obhliadku

Čas obhliadky

1. termín

2. termín

Chcem získať najvýhodnejšiu hypotéku!


Spolupracujeme s profesionálmi a dokážeme vám vďaka tomu vybaviť najvýhodnejšiu hypotéku, nechajte si zaslať od nás ponuku.

Súhlas so spracovaním osobných údajov

Dotknutá osoba v súlade s príslušnými ustanoveniami zákona č. 18/2018 Z.z. o ochrane osobných údajov a o zmene a doplnení niektorých zákonov v znení neskorších predpisov (ďalej len ,,ZoOOÚ“) potvrdzuje správnosť a aktuálnosť svojich osobných údajov uvedených v kontaktom formulári. Dotknutá osoba týmto čestne vyhlasuje, že udeľuje prevádzkovateľovi svoj výslovný, slobodný, vážny a bezvýhradný súhlas so spracúvaním jej osobných údajov v rozsahu: meno, priezvisko, telefonický kontakt, e-mailová adresa na účel kontaktovania dotknutej osoby ako záujemcu o spoluprácu v informačnom systéme sprostredkovateľa ,,klienti“ počas doby 180 dní od udelenia tohto súhlasu. Dotknutá osoba má právo kedykoľvek odvolať tento súhlas so spracovaním osobných údajov rovnakým spôsobom, akým ho udelila. Odvolanie súhlasu nemá vplyv na zákonnosť spracúvania osobných údajov založeného na súhlase pred jeho odvolaním. Práva dotknutej osoby vymedzujú najmä §§ 19 – 30 ZoOOÚ. Práva a povinnosti sprostredkovateľa, ako prevádzkovateľa, vymedzujú najmä §§ 31 – 46 ZoOOÚ. Dotknutá osoba potvrdzuje, že sprostredkovateľ splnil svoju oznamovaciu povinnosť v rozsahu požadovanom ZoOOÚ. Dotknutá osoba berie na vedomie, že na zabezpečenie toho, že spracúvanie jej osobných údajov sa vykonáva v súlade so ZoOOÚ sprostredkovateľ prijal primerané technické, organizačné a personálne opatrenia zodpovedajúce spôsobu spracúvania osobných údajov, pričom zobral do úvahy najmä použiteľné technické prostriedky, dôvernosť a dôležitosť spracúvaných osobných údajov, ako aj rozsah možných rizík, ktoré sú spôsobilé narušiť bezpečnosť alebo funkčnosť jeho informačných systémov. Sprostredkovateľ bude s osobnými údajmi dotknutej osoby zaobchádzať a nakladať v súlade s platnými a účinnými právnymi predpismi.

Súhlas so spracovaním osobných údajov

FINAT IMMOBILIEN

Overený člen Združenia realitných kancelárií Slovenska

Spoločnosť FINAT IMMOBILIEN pôsobí viac ako 10 rokov na rakúskom realitnom trhu ako licencovaná realitná kancelária (obchodný register č. FN 430970 f). Sme riadnymi členmi Rakúskej hospodárskej komory (poistenie v ALLIANZ Wien) aj Združenia realitných kancelárií Slovenska - máte u nás zaručenú bezpečnosť realitného obchodu. Okrem realitnej činnosti zastrešujeme aj tlmočenie pri realitných obchodoch a úradných stretnutiach, výhodné financovanie, vybavujeme stavebné povolenia a ďalšie procesy spojené s bývaním v Rakúsku. Obracajú sa na nás aj slovenské realitné kancelárie, ktoré potrebujú pre klienta sprostredkovať kúpu nehnuteľnosti v rakúskom pohraničí cez licencovaného partnera, aby prebehlo všetko v súlade so zákonom.

Súhlas so spracovaním osobných údajov

Dotknutá osoba v súlade s príslušnými ustanoveniami zákona č. 18/2018 Z.z. o ochrane osobných údajov a o zmene a doplnení niektorých zákonov v znení neskorších predpisov (ďalej len ,,ZoOOÚ“) potvrdzuje správnosť a aktuálnosť svojich osobných údajov uvedených v kontaktom formulári. Dotknutá osoba týmto čestne vyhlasuje, že udeľuje prevádzkovateľovi svoj výslovný, slobodný, vážny a bezvýhradný súhlas so spracúvaním jej osobných údajov v rozsahu: meno, priezvisko, telefonický kontakt, e-mailová adresa na účel kontaktovania dotknutej osoby ako záujemcu o spoluprácu v informačnom systéme sprostredkovateľa ,,klienti“ počas doby 180 dní od udelenia tohto súhlasu. Dotknutá osoba má právo kedykoľvek odvolať tento súhlas so spracovaním osobných údajov rovnakým spôsobom, akým ho udelila. Odvolanie súhlasu nemá vplyv na zákonnosť spracúvania osobných údajov založeného na súhlase pred jeho odvolaním. Práva dotknutej osoby vymedzujú najmä §§ 19 – 30 ZoOOÚ. Práva a povinnosti sprostredkovateľa, ako prevádzkovateľa, vymedzujú najmä §§ 31 – 46 ZoOOÚ. Dotknutá osoba potvrdzuje, že sprostredkovateľ splnil svoju oznamovaciu povinnosť v rozsahu požadovanom ZoOOÚ. Dotknutá osoba berie na vedomie, že na zabezpečenie toho, že spracúvanie jej osobných údajov sa vykonáva v súlade so ZoOOÚ sprostredkovateľ prijal primerané technické, organizačné a personálne opatrenia zodpovedajúce spôsobu spracúvania osobných údajov, pričom zobral do úvahy najmä použiteľné technické prostriedky, dôvernosť a dôležitosť spracúvaných osobných údajov, ako aj rozsah možných rizík, ktoré sú spôsobilé narušiť bezpečnosť alebo funkčnosť jeho informačných systémov. Sprostredkovateľ bude s osobnými údajmi dotknutej osoby zaobchádzať a nakladať v súlade s platnými a účinnými právnymi predpismi.