Táto výnimočná architektonická vila spája panorámu, súkromie a kvalitu dizajnu v jednej z najvyhľadávanejších svahovitých lokalít na Hexenbergu v Hainburg an der Donau. Nachádza sa na priestrannom, slnečnom pozemku o výmere 1678 m2 a ponúka zriedkavý celok pozostávajúci z exkluzívnej rezidenčnej architektúry, kvalitnej kompletnej rekonštrukcie a jedinečnej záhradnej scenérie s prírodným kúpacím jazierkom a samostatným hosťovským domom.
Harmonický celok vytvára exkluzívna svahovitá poloha, výnimočná lokalita, výrazná architektúra a nadštandardná úroveň vybavenia. Nehnuteľnosť spája pôsobivý ďaleký výhľad, vysokú mieru súkromia a jasne štruktúrovaný dispozičný koncept s komplexnou generálnou rekonštrukciou realizovanou v rokoch 2022-2024.
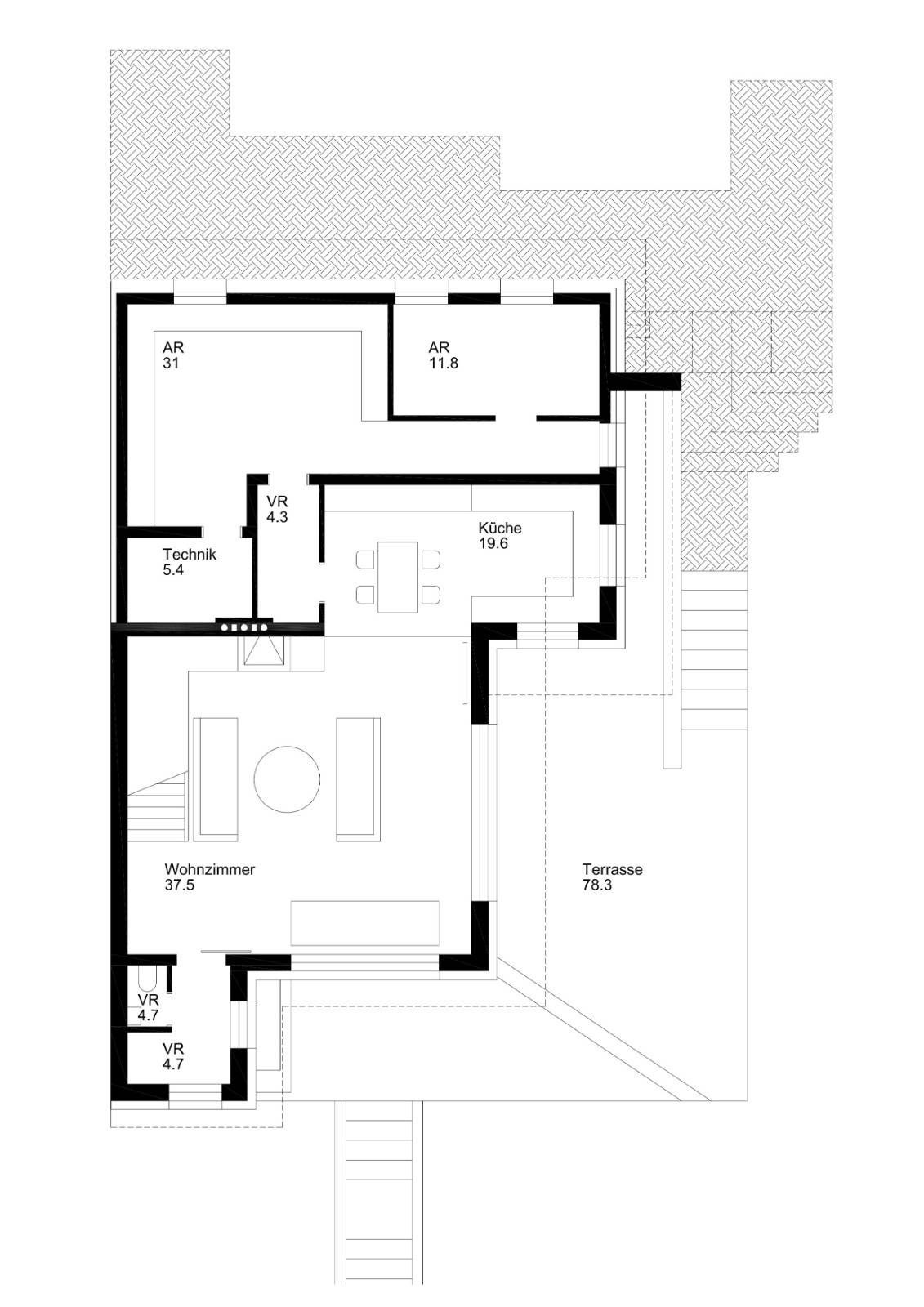
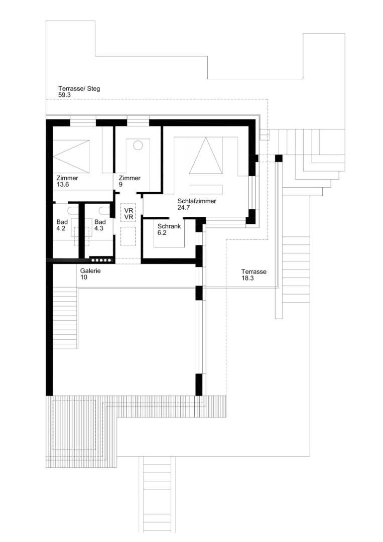
Na približne 214 m² obytnej plochy sa rozprestiera architektonicky výrazný rodinný dom s veľkorysým priestorovým efektom a čistými líniami. Otvorený obývací a jedálenský priestor s prevažne dvojpodlažnou výškou stropu (cca 5 m), galériou a veľkoformátovým presklením tvorí reprezentatívne centrum domu. Plynulé prepojenie na terasové plochy rozširuje obytný priestor smerom do exteriéru. Premyslené vedenie svetla, priehľady a objem priestoru vytvárajú výnimočne vzdušnú a zároveň kvalitnú atmosféru bývania.
Dispozičné riešenie zahŕňa viacero spální – jedna z nich s walk-in šatníkom –, kúpeľne, galériu a pracovné priestory, ako aj ďalšie funkčné miestnosti. Umožňuje tak flexibilné využitie – od exkluzívneho rodinného sídla až po kombináciu bývania a práce. Technicky je nehnuteľnosť na modernej úrovni s modernizovanými technológiami budovy, integráciou smart home systému, kombinovaným vykurovaním a kvalitným systémom tienenia.
Osobitným kvalitatívnym prvkom je exteriérový koncept: viacero úrovní terás s celkovou plochou približne 155 m², kvalitné plochy z prírodného kameňa a starostlivo umiestnené oddychové zóny. Veľkorysé prírodné kúpacie jazierko s drevenou terasou a vodopádom tvorí vizuálne aj funkčné centrum záhrady. Areál dopĺňa potôčik, ohnisko, chodníky z prírodného kameňa a výsadba stromov a kríkov – záhradná kompozícia s vysokou estetickou hodnotou. Exteriér je doplnený o prípravu na vírivku a saunu.
Samostatný hosťovský dom s vlastným vybavením ponúka ďalšie možnosti využitia – pre návštevy, prácu, ateliér alebo nezávislé bývanie. Ďalší záhradný domček prakticky dopĺňa úžitkové plochy.
Vyvýšená poloha pozemku umožňuje pôsobivé panoramatické výhľady cez dunajské lužné lesy smerom na Viedeň a Bratislavu. Zároveň je nehnuteľnosť chránená, pokojná a z veľkej časti neviditeľná z okolia. Kombinácia pokojnej polohy a veľmi dobrej medzinárodnej dostupnosti – Viedeň, Bratislava a obe letiská v komfortnej vzdialenosti – robí lokalitu dlhodobo atraktívnou.
Dodatočné zvýšenie atraktivity lokality prináša plánovaný nový vzdelávací kampus v Hainburgu s verejným gymnáziom a pracoviskom vysokej školy (FH) so zameraním na biotechnológie. Tento rozvoj posilňuje budúci potenciál mesta a podčiarkuje dlhodobú hodnotu lokality.
Táto nehnuteľnosť je určená pre kupujúcich, ktorí nehľadajú len kvalitnú obytnú plochu, ale komplexne premyslený celok pozostávajúci z architektúry, polohy, výhľadu a kvality života.
Základné údaje:
Výmera pozemku: cca 1 678 m²
Obytná plocha: cca 214 m²
Zastavaná plocha: cca 267 m²
Plocha záhrady: cca 1 441 m²
Plocha pivnice: cca 53 m²
Plocha terás: cca 150 m²
Počet izieb: 4,5
Kúpeľne: 2
WC: 3
Komory / skladové priestory: 2
Pivnica: 1
Terasy: 4
Rodinný dom
Celková obytná plocha cca 214 m²
Prízemie cca 137 m²
Poschodie cca 77 m²
Rok výstavby: 1995
Kompletná rekonštrukcia: 2022 – 2024
Dispozičné riešenie
Otvorený obývací a jedálenský priestor s galériou a veľkou svetlou výškou
Viacero spální
Viacero kúpeľní s WC
Galéria
Možnosť pracovného / kancelárskeho priestoru
Technické a vedľajšie miestnosti k dispozícii
Terasy a exteriérové plochy
Celková plocha terás cca 155 m²
Terasa z prírodného kameňa na prízemí cca 80 m²
Drevená terasa na poschodí cca 59 m²
Balkón cca 16 m²
Viacero oddychových zón v záhrade
Hosťovský dom
Obytná plocha cca 30 m²
Obývacia izba s jedálňou a kuchyňou, vlastná terasa
Kúpeľňa s WC
Prípojka na klimatizáciu
Hlavné prvky exteriéru
Kúpacie jazierko cca 100 m²
Hĺbka cca 1,5 – 4 m
Obehová technika a filtračný systém
Vodopád s potôčikom (cca 30 – 40 m)
Vonkajšia sprcha s prípojkou na teplú vodu
Chodníky a terasy z prírodného kameňa
Príprava na vírivku a saunu
Ohnisko
Vzrastlá výsadba stromov a kríkov
Zavlažovací systém v celej záhrade
Vybavenie a technológie
Smart Home systém (KNX)
Alarm s video dohľadom
Plynové ústredné kúrenie
Elektrické podlahové kúrenie (doplnkové)
Kachľová pec s presklením
Veľkoformátové okná so systémom tienenia
Parkovanie a prístup
Garáž k dispozícii
Priamy prístup vozidlom až k domu
Orientácia
Slnečná svahovitá poloha s takmer celodenným slnkom
Vo veľkej miere neviditeľné z okolia
Bez priebežnej dopravy
Rozvoj lokality
Plánovaný vzdelávací kampus v Hainburgu
Verejné gymnázium v príprave
Plánované pracovisko vysokej školy (FH) so zameraním na biotechnológie
Rozsah rekonštrukcie v rokoch 2022 – 2024
Kompletná modernizácia technických zariadení vrátane rozvodov
Výmena všetkých okien (trojsklo)
Integrácia Smart Home systému (KNX)
Obnova systému tienenia
Modernizácia interiéru
Nové kvalitné riešenie exteriéru
Doplnenie bezpečnostných technológií
Táto výnimočná architektonická vila spája panorámu, súkromie a kvalitu dizajnu v jednej z najvyhľadávanejších svahovitých lokalít na Hexenbergu v Hainburg an der Donau. Nachádza sa na priestrannom, slnečnom pozemku o výmere 1678 m2...
Čítať ďalej